granitový dřez NAIKY 980 - barva GRANBLACK
Popis produktu
GRANITOVÉ DŘEZY LZE OBJEDNAT JEN PRO SMLUVNÍ PARTNERY INTERCOM BOHEMIA sro.
Granitové dřezy jsou distribuovány ze skladů našeho dodavatele v balení, které snižuje možnost jejich poškození během dopravy. Z tohoto důvodu je k ceně dřezu připočtena částka 199,- Kč poštovného (cena je uvedena bez DPH) a platební styk lze uskutečnit pouze platebním převodem.
Je nutné vámi vybraný set (jeho objednací číslo) napsat do poznámky objednávky stejně jako další požadavky (vyvrtání otvoru pro baterii).
Více informací získáte na 386 322 663 nebo odbyt@intercom-bohemia.cz
Technické parametry
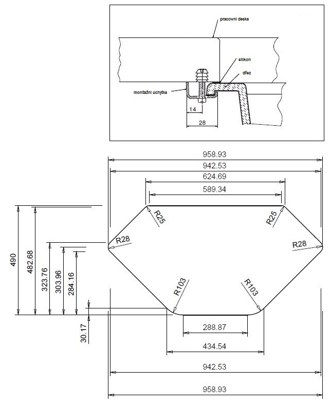
| Typ dřezu | rohové dřezy |
|---|
| Spodní skříňka | 500 mm |
|---|---|
| Vnější rozměry | 980 x 510 mm |
| Rozměry vany | 436 x 400 mm |
| Hloubka dřezu | 210 mm |
| Výpust | 3 ½“ |
| Orientace | Rohový |
| Odstín | černé/šedé |
| Barva | 30 - granblack |
| Modelová řada | Sinks TELMA |









